Logo
Logo
8 (903) 300-40-50
Logo
8 (903) 300-40-50
  • ПРОЕКТЫ
  • ИПОТЕКА
  • УСЛУГИ
    • Строительство домов
    • Индивидуальное проектирование
    • УШП
    • Отделочные работы
    • Инженерные коммуникации
  • ТЕХНОЛОГИЯ
    • Технологии строительства
    • Вопрос и ответ
    • Полезная информация
    • Фасады
    • Галерея монтажа заводских домов
    • Вакансии
  • КОНТАКТЫ
СЬЮТ АРКТИК

 6 500 000 ₽
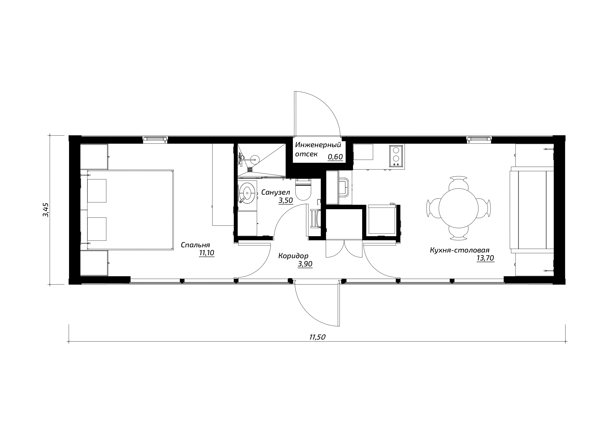
 Площадь 
32.8 м²
Размеры дома
11500 х 3450 х 3150 мм
Этажность
1
Кол-во спален
1
 Площадь 
32.8 м²
11500 х 3450 х 3150 мм
Этажность
1
Кол-во спален
1
Компактный дом общей площадью 32.8 м² с террасой.

Одноэтажный дом, спальное место для комфортного времяпровождения в ночное время отделено шкафом.
ТН АТОММ СЬЮТ — это современный, энергоэффективный и мобильный жилой модуль, идеально подходящий для турбаз, глэмпингов и эко-отелей. Модуль полностью готов к эксплуатации, устанавливается за 2 часа и не требует капитального строительства. Благодаря современному дизайну, панорамным окнам и гармоничному слиянию с природой, гости получают совершенно новый, запоминающийся опыт проживания — комфорт на уровне городских апартаментов в природной локации. Такое решение позволяет быстро расширить номерной фонд, привлечь новых клиентов, снизить затраты и риски, а также обеспечить круглогодичную загрузку, делая ваш туристический бизнес современным, конкурентноспособным и прибыльным.
Планировка
Идеи оформления интерьера
Вдохновитесь идеями по оформлению интерьера будущего дома.
ПОМОЖЕМ ОДОБРИТЬ ИПОТЕКУ

Заводские дома

АТОММ ВЕРАНДА ПЛЮС
35 м2
11500 х 3450 х 3150 мм

Кол-во человек 1-4

МОНЕ 60
61.16 м²
7.3х9.85
1 этаж
2 спальни
1 санузел
АТОММ СЬЮТ АРКТИК
39.7 м²
3.45х11.5
1 этаж
1 спальня
1 санузел
ГОГЕН
129 м²
17.1x8.9
1 этаж
3 спальни
2 санузла
ВАНГОГ
98.71 м²
12.5х12.5
1 этаж
3 спальни
2 санузла
МАТИСС
54.19 м²
6х9
1 этаж
1 спальня
1 санузел
СЕЗАНН
149.98 м²
13х16,1
1 этаж
3 спальни
2 санузла
ПОСТРОЙТЕ СВОЙ ДОМ ВМЕСТЕ С НАМИ

Заполните форму и наш специалист свяжется с вами в ближайшее время

Нажимая на кнопку, вы даете согласие на обработку персональных данных

Logo
Logo
© 2008-2024. Все права защищены. 
Информация на сайте не является публичной офертой
  • ПРОЕКТЫ
    • Типовые каркасные дома
    • Заводские дома
    • Собери сам
  • ГАЛЕРЕЯ
    • Построенные дома
    • Фасады
  • УСЛУГИ
    • Индивидуальные дома
    • УШП
    • Отделочные работы
    • Инженерные коммуникации
  • КОНТАКТЫ
  • ТЕХНОЛОГИЯ
    • ТЕХНОЛОГИЯ СТРОИТЕЛЬСТВА
    • ВОПРОСЫ - ОТВЕТЫ
    • ПОЛЕЗНАЯ ИНФОРМАЦИЯ
    • ПОЛИТИКА КОНФИДЕНЦИАЛЬНОСТИ
8 903 300 40 50
e-mail: sales@mila-villa.ru
ИП Архиповский А.В.
ИНН 636702072122
ОГРНИП 322631200167153
г. Самара, Садовая 278, 
1 этаж

Оформить заявку

Нажимая на кнопку, вы даете согласие на обработку персональных данных

Оформить заявку

Нажимая на кнопку, вы даете согласие на обработку персональных данных

Ваш вопрос принят в работу. 
Скоро мы Вам ответим!
Задать вопрос
Менеджеры компании с радостью ответят на Ваши вопросы, произведут расчет стоимости услуг и подготовят индивидуальное коммерческое предложение.

Нажимая на кнопку, вы даете согласие на обработку персональных данных

Рассчитать стоимость строительства
Мы бесплатно составим смету строительства по интересующему проекту!

Нажимая на кнопку, вы даете согласие на обработку персональных данных

Отправлено

Ваша заявка принята в обработку. 

Мы свяжемся с вами в ближайшее время

Задать вопрос
Менеджеры компании с радостью ответят на Ваши вопросы, произведут расчет стоимости услуг и подготовят индивидуальное коммерческое предложение.

Нажимая на кнопку, вы даете согласие на обработку персональных данных

Рассчитать стоимость строительства
Мы бесплатно составим смету строительства по интересующему проекту!

Нажимая на кнопку, вы даете согласие на обработку персональных данных

Ваша заявка принята в работу. 
Скоро мы с Вами свяжемся!
Задать вопрос
Менеджеры компании с радостью ответят на Ваши вопросы, произведут расчет стоимости услуг и подготовят индивидуальное коммерческое предложение.

Нажимая на кнопку, вы даете согласие на обработку персональных данных

Перезвоните мне

Нажимая на кнопку, вы даете согласие на обработку персональных данных

HTML код
Страница на разработке
Ваш вопрос принят в работу. 
Скоро мы Вам ответим!

Отправлено

Ваша заявка принята в обработку. 

Мы свяжемся с вами в ближайшее время

Перезвоните мне

Нажимая на кнопку, вы даете согласие на обработку персональных данных

HTML код
Страница на разработке
Ваш вопрос принят в работу. 
Скоро мы Вам ответим!

Отправлено

Ваша заявка принята в обработку. 

Мы свяжемся с вами в ближайшее время